
Need help deciding what style suits you best? Mood boards are a great tool to look at before starting a project.

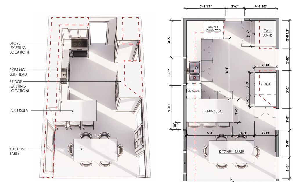
Plans are a useful tool to help decide on a layout before developing 3D views.

Elevations are useful to fully understand the space and make design intent clear for the contractor and builders.

Don't have time to research suppliers? We can provide a detailed list of where to find those items you need and even provide required square footage of your finishes for pricing information.
ITL Design
Copyright © 2024 ITL Design - All Rights Reserved.
Powered by GoDaddy
We use cookies to analyze website traffic and optimize your website experience. By accepting our use of cookies, your data will be aggregated with all other user data.